About the Property
This appealing family home is located in town of Wick and has two bedrooms, garden grounds, gas central heating and double glazed windows.
- Utility room
- Double glazed windows
- Front & rear gardens
- Gas central heating
- En-suite shower room
- End-terraced house
Property Details
PROPERTY
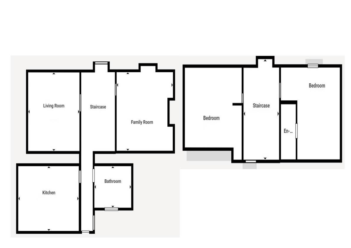
Situated in a desirable location, within easy walking distance of number of excellent amenities, 33 East Banks is an attractive two bedroomed traditional end-terraced villa that has well proportioned rooms spread over two floors and will appeal to young families and first time buyers. The versatile accommodation requires a degree of modernisation, but is generous in size and has a number of features including an open fireplace, double glazed windows, an en-suite, gas central heating and an external utility room. Upon entering the property, you are met with a welcoming entrance hall, off which can be found two reception rooms including a formal lounge with feature electric fire, and a family/sitting room, which could also be utilised as a dining room for memorable family meals. The inner hall gives access to the fully tiled bathroom which has a WC, a wash hand basin, a bath and a shower cubicle, as well as the substantial kitchen/breakfast room. This well equipped room is the heart of the home and allows ample space for a table and chairs, and is fitted with a number of modern wall and base mounted units with worktops and splashbacks and a 1½ stainless steel sink with mixer tap and a drainer. Integral goods located here comprise a eye level oven/grill, and 5 ring gas hob with fan over, a fridge-freezer and dishwasher. The useful utility room is accessed externally from the rear elevation and has two cupboards, a sink, and plumbing for a washing machine. From the hallway, a staircase rises to the second floor which houses a landing and two double bedrooms, both which have storage facilities and the primary bedroom having the advantage of an en-suite shower room.
Outside, the front garden is of low maintenance as its laid to gravel and is enclosed by walling. The rear garden is a combination of lawn, with areas of gravel and patio, ideal for outdoor pursuits. Mature trees, hedges and shrubs offer privacy, as well as the timber fencing and walling. Sited here is a garden shed which is included in the sale.
The Royal Burgh of Wick is the most northerly town on the East Coast of Caithness and is on the very the famous North Coast 500 (NC500) tourist route. The vibrant town offers good shopping, with a number of stores including a Tesco Supermarket, Boots Chemist, Argos, Pets at Home, B&M and Argos. There are many leisure opportunities including a golf course and squash club, plus a public swimming pool/gymnasium. The property is within commuting distance of all amenities, including both Primary and Secondary Schooling, Caithness General Hospital and Doctors Surgery. The town also boasts banks, a post office, and an airport.
ENTRANCE HALL
LOUNGE
approx 4.18m x 4.44m (at widest point) (approx 13'
FAMILY ROOM/DINING ROOM
approx 4.45m x 3.84m (approx 14'7" x 12'7")
REAR HALL
BATHROOM
approx 2.235m x 2.77m (approx 7'3" x 9'1")
KITCHEN/BREAKFAST ROOM
approx 3.67m x 4.51m (approx 12'0" x 14'9")
UTILITY ROOM
approx 2.84m x 3.00m (approx 9'3" x 9'10")
LANDING
BEDROOM TWO
approx 4.02m x 4.46m (approx 13'2" x 14'7")
BEDROOM ONE
approx 4.40m x 4.16m (at widest point) (approx 14'
EN-SUITE SHOWER ROOM
approx 1.03m x 2.68m (approx 3'4" x 8'9")
SERVICES
Mains water, gas, electricity and drainage.
EXTRAS
All fitted floor coverings, curtains and blinds. A washing machine and a freezer.
HEATING
Gas central heating.
GLAZING
Double glazed windows throughout.
COUNCIL TAX BAND
C
VIEWING
Strictly by appointment via Munro & Noble Property Shop - Telephone 01955 602 222
ENTRY
By mutual agreement.
HOME REPORT
Home Report Valuation - £120,000
A full Home Report is available via Munro & Noble website.
























