About the Property
A two bedroomed, semi-detached villa which benefits from double glazed windows, air source heating and a garage.
- Low maintenance gardens
- Detached garage
- Air source heating
- Semi-detached house
- Loft access
- Double glazed windows throughout
Property Details
PROPERTY
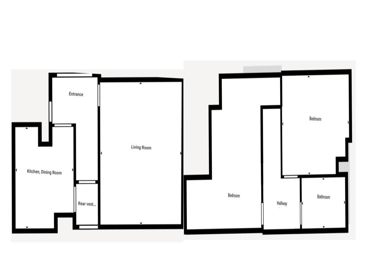
24 Leishman Avenue is a two bedroomed semi-detached house, located in the popular town of Wick. The property benefits from double glazed windows, air source heating, ample storage facilities and viewing is highly recommended to fully appreciate the size of the accommodation within. Spread over two floors, the ground floor consists of an entrance hall, a dual aspect lounge which allows an abundance of light to flood the room throughout the day and a feature electric fire set within a wooden surround. Completing the ground floor accommodation is the kitchen which leads to the rear vestibule. The kitchen/diner comprises wall and base mounted units with worktops, splashback tiling, a 1 ½ stainless steel sink with mixer tap and drainer and provides space for a table and chairs. The integrated goods include an electric hob with extractor fan over, and an eye-level electric oven and grill. Included in the sale is a washing machine, dishwasher and a freestanding under-counter fridge. The first floor accommodation has a landing which gives access to the loft) two double bedrooms, both of which boast built-in storage facilities and a shower room. The shower room is fully tiled and has a WC, a vanity wash hand basin and a corner shower cubical with electric shower.
Outside, the front elevation is fully enclosed by walling and is of low maintenance being laid to a combination of gravel and patio, while the rear elevation is also fully enclosed by walling with additional timber fencing giving the property a degree of privacy. The rear is predominantly laid to lawn with a gravel and patio area which is perfectly positioned to enjoy the sunshine and al-fresco dining. Sited here and included in the sale is the timber garden shed. To the rear of the property there is a single garage which benefits from power, lighting and an up and over door.
The Royal Burgh of Wick is the most northerly town on the East Coast of Caithness and is on the very the famous North Coast 500 (NC500) tourist route. The vibrant town offers good shopping, with a number of stores including a Tesco Supermarket, Boots Chemist, Argos, Pets at Home, B&M and Argos. There are many leisure opportunities including a golf course and squash club, plus a public swimming pool/gymnasium. The property is within commuting distance of all amenities, including both Primary and Secondary Schooling, Caithness General Hospital and Doctors Surgery. The town also boasts banks, a post office, and an airport. There is excellent rail and coach services, as well as being close to ferry terminals with frequent daily services to Orkney.
ENTRANCE HALL
LOUNGE
approx 4.71m x 3.48m (approx 15'5" x 11'5")
KITCHEN/DINER
approx 2.80m x 2.60m (approx 9'2" x 8'6")
REAR VESTIBULE
approx 1.37m x 1.00m (approx 4'5" x 3'3")
LANDING
BEDROOM TWO
approx 3.59m x 3.03m (approx 11'9" x 9'11")
SHOWER ROOM
approx 2.32m x 1.55m (approx 7'7" x 5'1")
BEDROOM ONE
approx 4.68m x 2.64m (approx 15'4" x 8'7")
GARAGE
approx 2.76m x 5.82m (approx 9'0" x 19'1")
SERVICES
Mains water, electricity and drainage.
EXTRAS
All fitted floor coverings, curtains and blinds. A washing machine, a dishwasher and a fridge.
HEATING
Air source central heating.
GLAZING
Double glazed wndows throughout.
COUNCIL TAX BAND
A
VIEWING
Strictly by appointment via Munro & Noble Property Shop - Telephone 01955 602222
ENTRY
By mutual agreement.
HOME REPORT
Home Report Valuation - £85,000
A full Home Report is available via Munro & Noble website.


















