About the Property
This fantastic, three bedroomed semi-detached villa located in Culloden has a private driveway, low maintenance gardens, and gas central heating.
- Spacious family home in a quiet residential area
- Low maintenance garden grounds
- Private driveway for two vehicles
- Ground floor bedroom & bathroom
- Open plan kitchen & dining area
- Excellent storage throughout
- Close to Primary & Secondary schooling
- Modern accomodation
- Gas central heating
- Double glazed windows
Property Details
PROPERTY
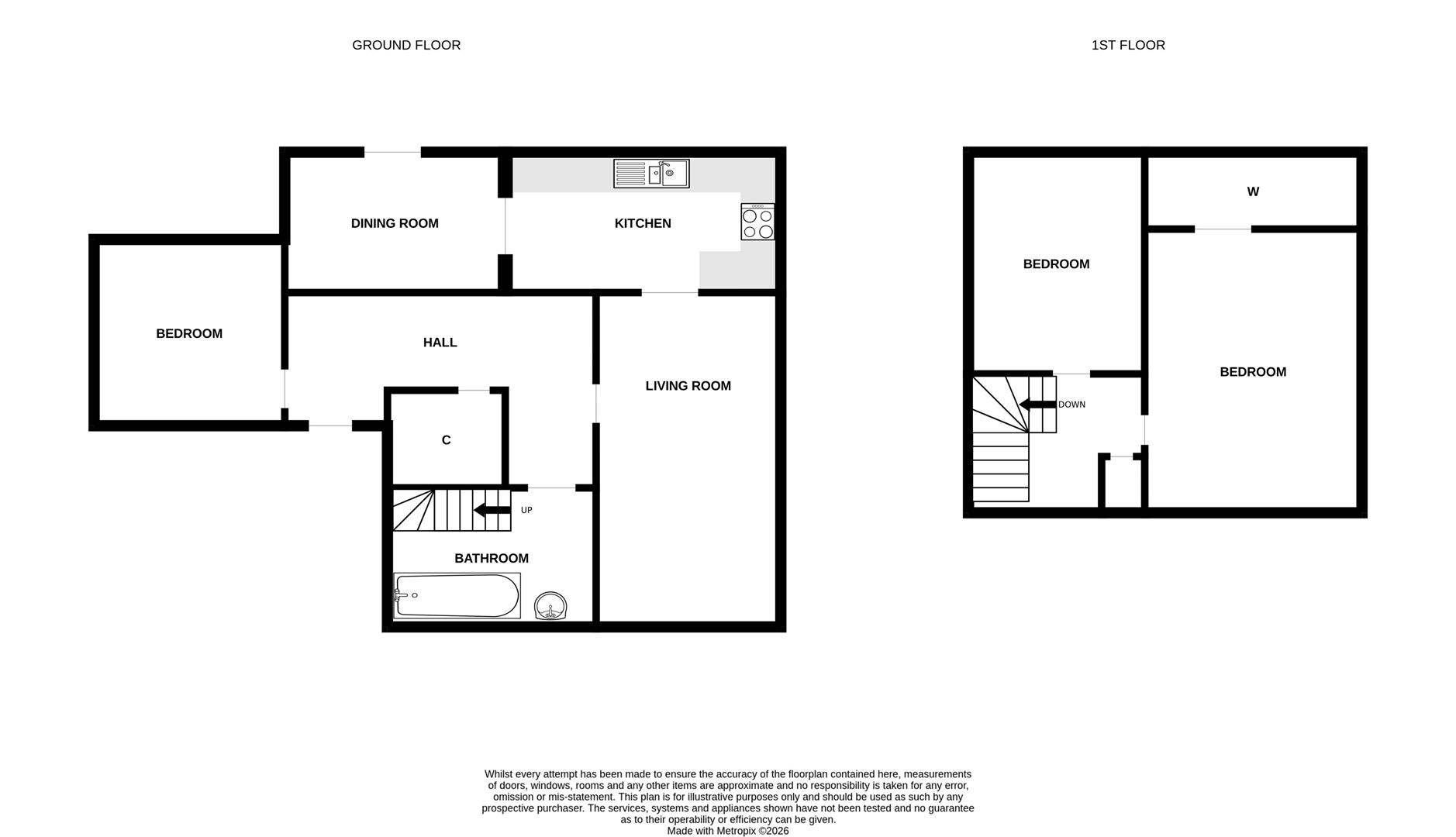
Situated in the popular Culloden area of the city, within easy walking distance of number of excellent amenities including primary and secondary schooling, this appealing three bedroomed semi-detached villa occupies a generous corner plot, and has been designed for comfortable family living, with its well proportioned rooms and fantastic storage facilities. Inside offers bright and appealing accommodation spread over two floors, and affords a number of great features including double glazed windows, gas central heating, a private driveway and low maintenance gardens. Upon entering the property, you are met with an entrance hall that opens onto the generous, double aspect principal bedroom, a bright and homely lounge with feature electric fire, and the kitchen/diner. Providing sufficient space for families meals, this open plan room has contemporary wall and base mounted units with worktops, complimentary splashback tiling, and a 1½ stainless steel sink with drainer and mixer taps. An electric hob with extractor fan over, electric oven and fridge-freezer complete the integral goods. From here, a door opens onto the rear garden. The ground floor is finished by the modern bathroom which features stylish wet-walling, a vanity wash hand basin, WC and a bath with mains shower over. Upstairs houses a small landing and two further bedrooms, both which have Velux windows. A great deal of storage is provided throughout this home by a cupboard in the hall, two in the landing, and two of the bedrooms having built-in wardrobes. The superb use of glazing throughout this home won’t go unnoticed by visitors, allowing a profusion of natural light to flood the rooms throughout the day and early viewing comes highly recommended.
Outdoors, the garden to the front elevation is laid to gravel and is partially enclosed by fencing. The tiered rear garden is fully enclosed by walling, hedging and fencing, and is a combination of gravel and patio, making it low maintenance and easy to maintain. The patio area is well placed for enjoying the summer sun, outdoor dining and a safe place for children to enjoy. There is a lock-block driveway which runs to the rear elevation and provides off-street parking for two vehicles.
Local amenities within walking distance include a Co-op supermarket, post office, nursery and hairdressers. A regular buses provide access to Inverness city centre and Raigmore Hospital & Inshes retail park, which offers a wide range of shops, restaurants, recreational and leisure facilities, whilst Inverness Shopping Park (Eastfield Way) has a variety of shops, restaurants and VUE cinema.
ENTRANCE HALL
BEDROOM ONE
approx 3.04m x 4.15m (approx 9'11" x 13'7")
DINING ROOM
approx 2.69m x 2.64m (approx 8'9" x 8'7")
KITCHEN
approx 3.24m x 2.31m (approx 10'7" x 7'6")
LOUNGE
approx 3.25m x 4.73m (approx 10'7" x 15'6")
BATHROOM
approx 1.45m x 2.62m (approx 4'9" x 8'7")
LANDING
BEDROOM THREE
approx 3.54m x 2.68m (approx 11'7" x 8'9")
BEDROOM TWO
approx 3.42m x 2.39m (approx 11'2" x 7'10")
SERVICES
Mains water, gas, electricity, and drainage.
EXTRAS
All carpets, fitted floor coverings, curtains, blinds and washing machine. Small shed and storage unit.
HEATING
Gas central heating.
GLAZING
Double glazed windows throughout.
COUNCIL TAX BAND
D
VIEWING
Strictly by appointment via Munro & Noble Property Shop - Telephone 01463 22 55 33.
ENTRY
By mutual agreement.
HOME REPORT VALUATION
Home Report Valuation - £230,000
A full Home Report is available via Munro & Noble website.




















