Under Offer: 1 Bed Flat - Purpose Built 

37 Hazel Avenue, Culloden, Inverness
Offers Over £115,000

  • Reception Rooms: 1
  • Bedrooms: 1
  • Bathrooms: 1
  • Area: 431sqft

About the Property

Hazel Avenue, Culloden, IV2 7JX

This charming one bedroomed, first floor flat is fully double glazed, has gas heating and off-street parking.

  • Quiet cul-de-sac
  • Popular residental location
  • Ideal for first time buyers
  • Gas central heating
  • Double glazed windows
  • Open plan lounge/dining room
  • Modern shower room
  • Views
  • Attractive garden
  • Off-street parking for two cars

Property Photos

Virtual Tour

Property Details

PROPERTY

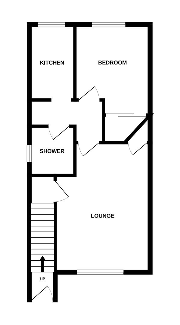
Located on the East side of Inverness, 37 Hazel Avenue is a superb, one bedroomed first floor flat that rests in a quiet cul-de-sac in the popular Culloden area of the city and benefits from its own independent access, a low maintenance garden and a shared driveway. This beautifully presented home offers comfortable, open-plan living with accommodation spreading over two floors, and will appeal to those looking to purchase their first home, the young and elderly alike and buy to let investors, given its excellent location. Internally, an entrance vestibule with stairs leading to the first floor lends privacy before entering the open plan lounge/dining room. This bright and airy, yet cosy space has a window to the front elevation, allowing natural light to floor the room throughout the day, a useful storage cupboard and space to accommodate a table and chairs for informal dining. From here, a door gives access to the inner hall off which can be found the bedroom which boasts double mirrored wardrobes with sliding doors, and the pantry/kitchen. This well equipped room has wall and base mounted units with worktops and splashbacks, a stainless steel sink with drainer and mixer tap, and an integral electric hob with fan over, grill and oven. Included in the sale price is a washing machine and fridge-freezer. Completing the accommodation is the stylish shower room which has the advantage of a wet-walled cubicle with electric shower, a vanity wash hand basin, a WC and is completed with complementary tiling. Further pleasing features include gas central heating, double glazed windows and a partially floored loft which has lights and a fold-down ladder.
Outside, a shared gravel driveway (left-hand side elevation for number 37) offers off-street parking for two cars and leads to the rear, well maintained garden. Enclosed by timber fencing, the garden is laid to gravel and is delicately decorated with pebble stones and colourful shrubs. A small patio area offers space for al-fresco dining and to the side elevation is a garden shed.
Nearby, there is a small cluster of shops and amenities which include a Co-op shop, a butchers and chemist, Post Office, hairdressers and medical centre. Primary and secondary schooling are both within walking distance, and there are leisure facilities at Culloden Academy. There is a regular bus service to and from Inverness City Centre where a comprehensive range of amenities can be found.

ENTRANCE STAIRWELL

LOUNGE/DINING ROOM

approx 3.41m x 4.69m (at widest point) (approx 11'

INNER HALL

BEDROOM

approx 3.27m x 2.72m (at widest point) (approx 10'

KITCHEN

approx 2.71m x 1.58m (approx 8'10" x 5'2")

SHOWER ROOM

approx 1.79m x 1.67m (approx 5'10" x 5'5")

SERVICES

Mains electricity, gas, water and drainage.

EXTRAS

All carpets, fitted floor coverings, blinds and light fittings. Fridge-freezer, washing machine and garden shed.

HEATING

Gas central heating.

COUNCIL TAX BAND

C

VIEWING

Strictly by appointment via Munro & Noble Property Shop - Telephone 01463 22 55 33.

ENTRY

By mutual agreement.

HOME REPORT

Home Report Valuation - £115,000
A full Home Report is available via Munro & Noble website.

Floorplans

Energy Performance Certificates

Location Map

Open In Google Maps

Enquire / Book Viewing of Hazel Avenue, Culloden, IV2 7JX

Contact Munro & Noble, Inverness
26 Church Street
Inverness
IV1 1HX
Tel: 01463 22 55 33
property@munronoble.com

Click here to see what else our team of estate agents can help you with.

  • arrange a viewing
  • arrange a valuation
  • be sent further property details
  • register for property updates

Contact Details:

Your details will only be used for the purposes of contacting you about your enquiry, in line with our Privacy Policy.
Scroll to Top