About the Property
This exquisite family home boasts four/five bedrooms, garden grounds, gas central heating, double glazed windows, and occupies a peaceful position.
- Sought after location
- Beautiful garden grounds
- Private driveway
- Feature wood-burner stoves
- Welcoming dining room
- Farmhouse style kitchen
- Excellent storage
- Well positioned sunroom
- Double glazed windows
- Gas central heating
Property Details
PROPERTY
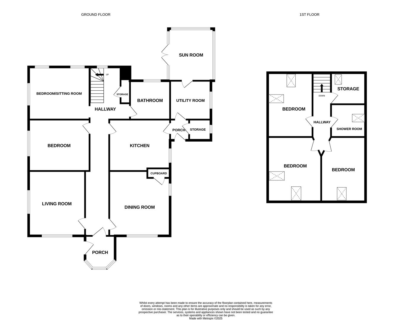
Nestled in the prestigious Drummond district of Inverness, and occupying a substantial plot, 24 Drummond Road is an impressive, four/five bedroomed detached villa that offers an unparalleled blend of spaciousness and comfort that will appeal to families, whilst having the advantage a sweeping driveway, a glorious garden and a well placed sunroom. Dating back to circa 1930, the impressive accommodation is spread over two floors and retains a number of its original charming features including high ceilings, cornicing, deep skirtings, solid doors, and beautiful tiled flooring. It also boats a security alarm system, gas central heating, double glazed windows and ample storage facilities. As you step inside, you are greeted with an inviting entrance porch, off which is the charming lounge and formal dining room. These double aspect rooms allow natural light to flood the space throughout the day, as well as both having multi-fuel stoves on Caithness Slate, perfect for cosy evening indoors and setting the stage for memorable meals. Down the hallway, there is a double bedroom with fitted storage, a sitting room/games room, which could be utilised as a further bedroom, and a deluxe bathroom which comprises a wet-walled shower cubicle with double shower head, a WC, vanity wash hand basin, and a beautiful free-standing copper bath adds a little bit of luxury to an already stunning room. The rear elevation houses the kitchen, a fantastic walk-in pantry, a useful utility room which has space for a washing machine and the sunroom which overlooks the garden. Providing ample storage with a number of wall and base mounted units, the attractive Ashely Ann kitchen has oak worktops, an island breakfast bar, a Belfast sink with mixer tap and a Rangemaster stove with splashback tiling. There is an integral dishwasher, and space for a fridge-freezer. The first floor comprises three, bright and airy double bedrooms, two which are double aspect, a shower room, and a large storage room.
Outside, keen gardeners will enjoy the attractive garden grounds which have been well maintained and surround the property. The front is laid to lawn and is enclosed by walling, blooming shrubs and mature trees, ensuring privacy. The gravel driveway offers sufficient parking and turning for vehicles, and to the side elevation can be found a neatly placed log store. The rear garden is secluded and a haven for al-fresco dining and soaking up the sunshine on the warmer months with its well positioned patio area. Sited here is a greenhouse, shed, and a swinging seat pergola. Overall, this gorgeous family home is in walk-in condition, and oozes style with its excellent finishes, making it an ideal purchase for those looking for a quality property in a seldom available location and early viewing is essential.
ENTRANCE PORCH
approx 2.17m x 2.12m (approx 7'1" x 6'11")
ENTRANCE HALL
LOUNGE
approx 3.95m x 4.73m (approx 12'11" x 15'6")
DINING ROOM
approx 4.27m x 4.16m (approx 14'0" x 13'7")
GROUND FLOOR BEDROOM
approx 3.63m x 4.28m (approx 11'10" x 14'0")
SITTING ROOM/GAMES ROOM
approx 3.69m x 4.28m (approx 12'1" x 14'0")
BATHROOM
approx 2.73m x 2.73m (approx 8'11" x 8'11")
KITCHEN
approx 3.55m x 4.27m (at widest point) (approx 11'
REAR HALL
UTILITY ROOM
approx 2.73m x 2.73m (approx 8'11" x 8'11")
SUN ROOM
approx 3.65m x 3.25m (approx 11'11" x 10'7")
LANDING
LOFT ROOM
approx 5.58m x 2.49m (approx 18'3" x 8'2")
BEDROOM FOUR
approx 3.25m x 5.36m (approx 10'7" x 17'7")
BEDROOM THREE
approx 3.99m x 3.92m (approx 13'1" x 12'10")
BEDROOM FIVE
approx 2.65m x 4.33m (approx 8'8" x 14'2")
SHOWER ROOM
approx 1.98m x 2.41m (approx 6'5" x 7'10")
SERVICES
Mains water, gas, electricity, and drainage.
EXTRAS
All carpets, fitted floor coverings, and selected curtains and blinds. A swinging seat pergola, garden shed and greenhouse.
HEATING
Ground Floor: Gas central heating
First Floor: Electric panel heaters
GLAZING
Double glazed windows throughout.
COUNCIL TAX BAND
G
VIEWING
Strictly by appointment via Munro & Noble Property Shop - Telephone 01463 22 55 33
ENTRY
By mutual agreement.
HOME REPORT
Home Report Valuation - £TBC
A full Home Report is available via Munro & Noble website.





































