About the Property
A three bedroomed, mid-terraced house which benefits from double glazed windows and low maintenance garden grounds.
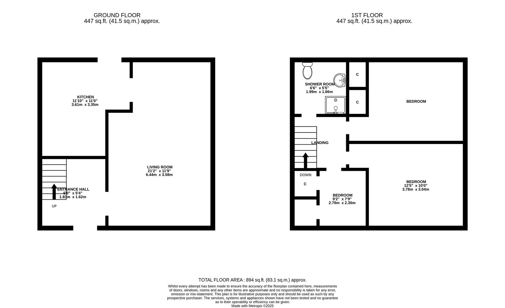
Property Details
PROPERTY
A great opportunity to purchase a spacious, three bedroomed mid-terraced house located in the established Hilton district of Inverness. This property is within easy walking distance of the city centre and offers many pleasing features including electric heating, double glazed windows and gardens. The accommodation is spread over two floors with the ground floor comprising an entrance hall with a large cupboard, a bright and airy double aspect lounge/dining room with feature electric fire set within a stone surround and a kitchen. This room is fitted with wall and base mounted units with worktops, a 1 ½ stainless steel sink with mixer tap and drainer, and has plumbing for a washing machine. From here a door provides access to the rear garden. From the entrance hall, stairs rise to the first floor accommodation which consists of a landing with loft access, two double bedrooms and a single bedroom (all of which have fitted storage) and a wet room which has a wash hand basin, a WC and a walk-in shower. The property requires modernisation, but once complete will suit a variety of potential purchasers including first time buyers and young families and viewing is recommended to appreciate the potential within.
Outside, the gardens to the front and rear are of low maintenance and are laid to gravel. The rear boasts a patio area which is perfect to enjoy some al-fresco dining. Sited here and included in the sale is the timber garden shed. Parking for the property is to the side elevation in the communal car park.
21 Balloan Road 42 is located in the established Hilton district of Inverness where local services include Hilton Village shopping area and a community centre as well as primary schooling. Further amenities can be found at Balloan Road shopping village including a convenience store, a chemist, a beauty salon and a bar/restaurant. The area is also serviced by a good bus service to and from Inverness city centre.
ENTRANCE HALL
LOUNGE/DINING ROOM
approx 3.55m x 6.37m (approx 11'7" x 20'10")
KITCHEN
approx 3.32m x 3.59m (at widest point) (approx 10'
LANDING
WET ROOM
approx 1.65m x 1.92m (approx 5'4" x 6'3")
BEDROOM TWO
approx 2.61m x 3.70m (approx 8'6" x 12'1")
BEDROOM ONE
approx 3.03m x 3.21m (approx 9'11" x 10'6")
BEDROOM THREE
approx 2.34m x 2.28m (approx 7'8" x 7'5")
SERVICES
Mains water, electricity, and drainage.
EXTRAS
All carpets, fitted floor coverings, curtains, blinds and two wardrobes.
HEATING
Electric heating.
GLAZING
Double glazed windows throughout.
COUNCIL TAX BAND
B
VIEWING
Strictly by appointment via Munro & Noble Property Shop - Telephone 01463 22 55 33.
ENTRY
By mutual agreement.
HOME REPORT
Home Report Valuation - £145,000.
A full Home Report is available via Munro & Noble website.






















